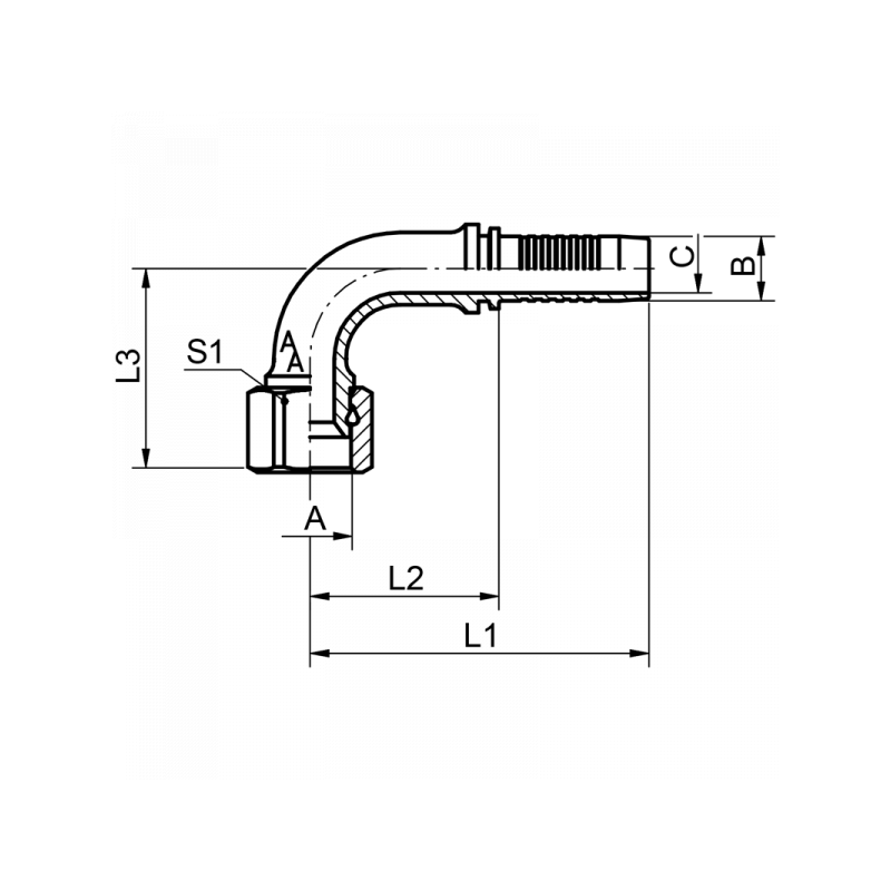
DKJ-90°: Pressnippel DKJ 90°, Dichtkegelmit 74° Konus, Dichtkopf UNF Gewinde
| A | B / mm | DN | L1 / mm | L2 / mm | L3 / mm | S1 | C / mm | Material | Art.Nr. | |
|---|---|---|---|---|---|---|---|---|---|---|
| 7/16-20UNF | 6,7 | 6 | 57 | 27 | 27 | 17 | 3,9 | 1.4571 | 4292DN06U7/16 | |
| 9/16-18UNF | 6,7 | 6 | 57 | 27 | 35 | 19 | 3,9 | 1.4571 | 4292DN06U9/16 | |
| 1/2-20UNF | 8 | 8 | 60 | 30 | 35 | 19 | 5,4 | 1.4571 | 4292DN08U1/2 | |
| 9/16-18UNF | 8 | 8 | 60 | 30 | 35 | 19 | 5,4 | 1.4571 | 4292DN08U9/16 | |
| 9/16-18UNF | 9,6 | 10 | 75 | 41,7 | 32 | 19 | 6,5 | 1.4571 | 4292DN10U9/16 | |
| 3/4-16UNF | 12,8 | 12 | 78 | 42,7 | 40 | 22 | 9,5 | 1.4571 | 4292DN12U3/4 | |
| 7/8-14UNF | 12,8 | 12 | 78 | 42,7 | 40 | 27 | 9,5 | 1.4571 | 4292DN12U7/8 | |
| 7/8-14UNF | 16 | 16 | 84 | 45,7 | 52 | 27 | 12,6 | 1.4571 | 4292DN16U7/8 | |
| 1 1/16-12UN | 19,1 | 20 | 110 | 64,2 | 61 | 32 | 14,8 | 1.4571 | 4292DN20U11/16 | |
| 1 5/16-12UN | 25,9 | 25 | 134 | 95 | 75,5 | 41 | 20,0 | 1.4571 | 4292DN25U15/16 | |
| 1 5/8-12UN | 32,5 | 32 | 158 | 98,2 | 93 | 50 | 26,0 | 1.4571 | 4292DN32U15/8 | |
| 1 7/8-12UN | 38,9 | 40 | 180 | 112,5 | 113 | 60 | 31,0 | 1.4571 | 4292DN40U17/8 |


